Palais de Justice
de Perpignan
Diagnostic architectural et patrimonial,
étude de faisabilité et assistance à maîtrise d’ouvrage
2013 – 2025
Lieu
Pont-de-l’Arche, Eure (27)
Type
Étude de faisabilité
Maîtrise d’ouvrage
Agence Publique pour l’Immobilier
de la Justice (APIJ)
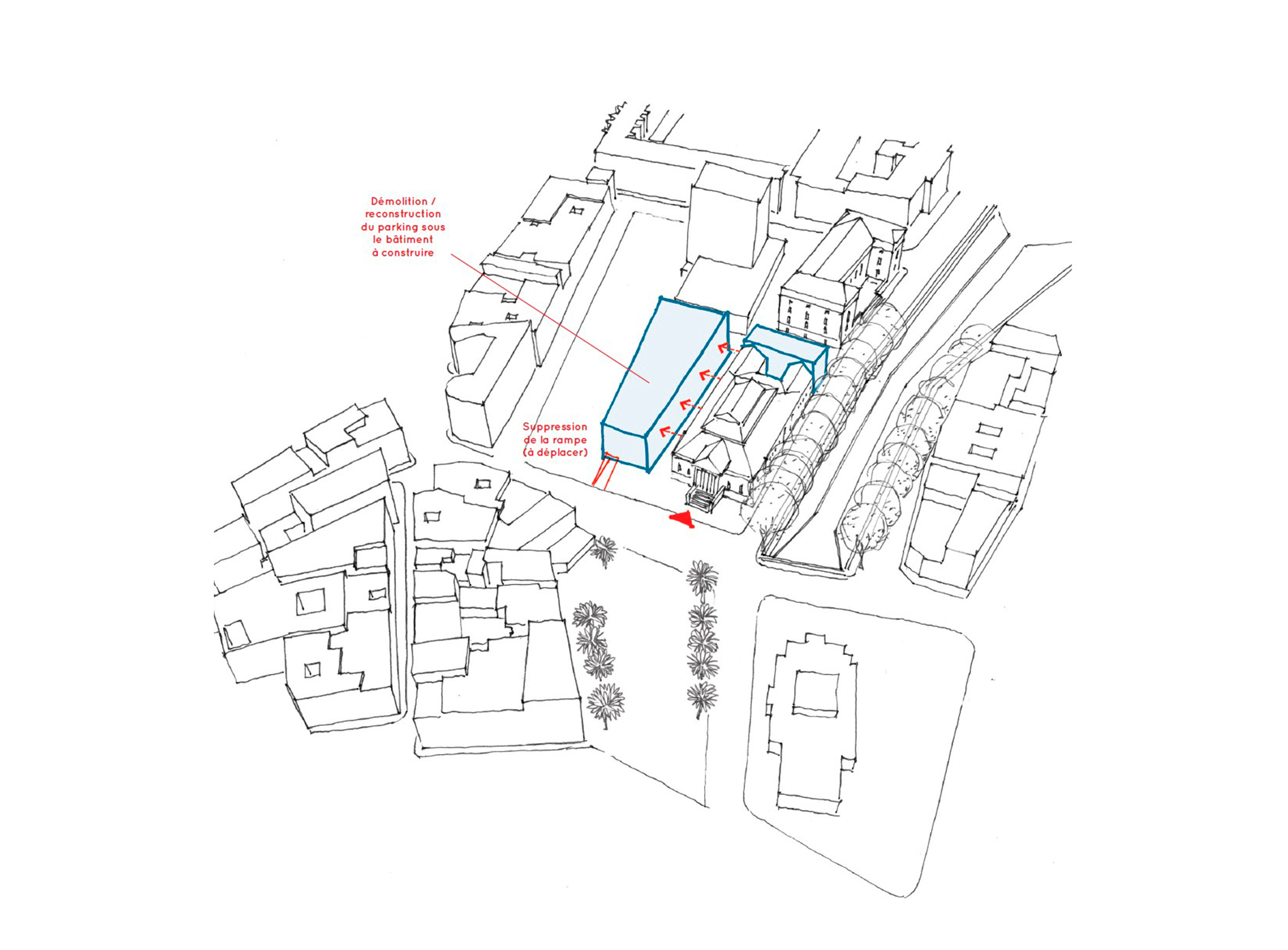
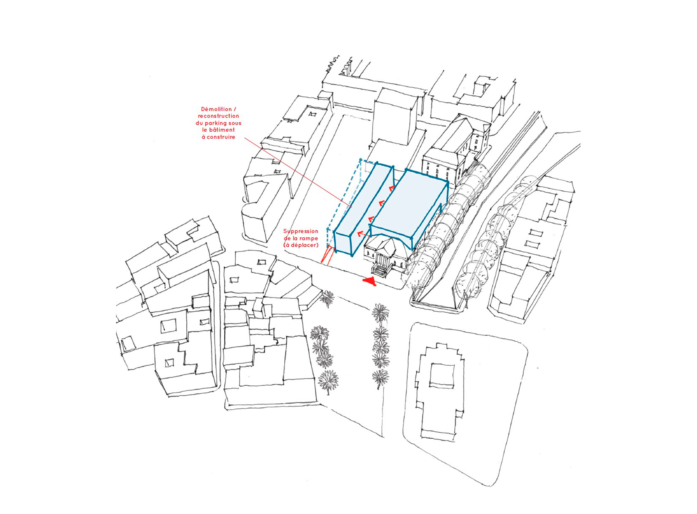
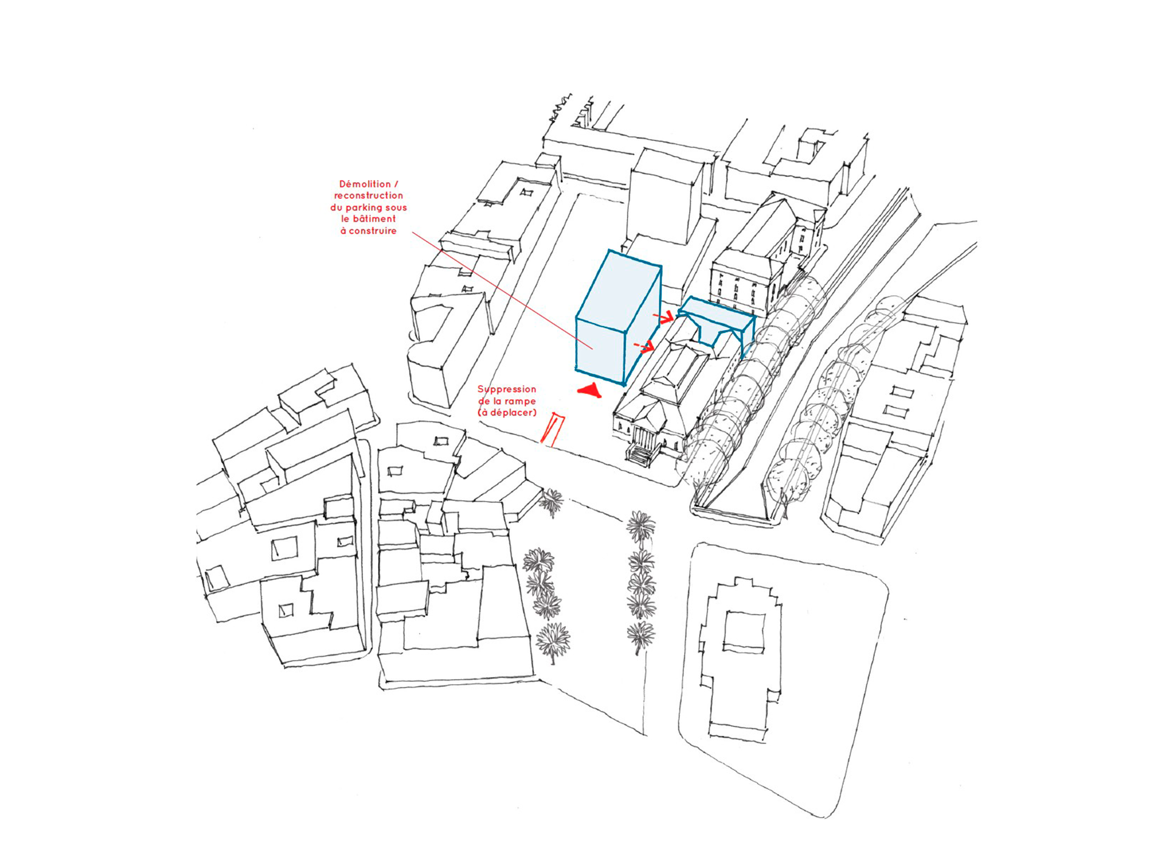
Le Ministère de la Justice envisage de réunir en un même lieu les différentes juridictions de Perpignan, réparties sur trois sites différents. Plusieurs scenarii sont envisagés. Soit l’extension du Palais de Justice historique (1840) se fait au sein du siège de la Chambre de Commerce et d’Industrie, situé dans l’ancien Palais Consulaire voisin (1920). Soit les parkings limitrophes permettent d’accueillir une extension neuve.
Comment rétablir les dispositifs spatiaux d’origine, très hiérarchisés, entre deux édifices ? Quels sont les coûts envisagés par rapport à une construction neuve en périphérie ? La perte de l’activité judiciaire en centre-ville soulève autant de questions d’ordre économique et social que de préservation patrimoniale. Au regard de la dimension historique des édifices, des données réglementaires et des caractéristiques programmatiques d’un tel projet, l’APIJ a confié plusieurs missions à Ligaré afin de l’accompagner dans la définition du projet.
Mission 1 : Étude architecturale, patrimoniale et urbaine
Mission 2 : Étude de faisabilité volumétrique, d’insertion urbaine et technique
Mission 3 : AMO dans le cadre de la modification du PSMV
Mission 4 : Élaboration du dossier de site pour le concours de MOE
Mission 5 : Prescriptions architecturales et cahier des charges du concours
Mission 6 : Analyse des offres des candidats à la maîtrise d’oeuvre
Montant
15 000 € HT (Mission 1)
22 000 € HT (Mission 2)
4 000 € HT (Mission 3)
5 000 € HT (Mission 4)
20 500 € HT (Mission 5)
2 5550 € HT (Mission 6)
Équipe
Ligaré, mandataire
LM Ingénieurs, BE structure
BMF, économie de la construction
103 rue Raymond Losserand, Paris 14e
SARL inscrite à l’Ordre des architectes – SIRET 479 222 838 00035
@ Ligaré architecture & patrimoine – 2025