Étude architecturale, patrimoniale et urbaine en vue d’une réhabilitation
2011
Palais de Justice de Strasbourg
Étude architecturale, patrimoniale et urbaine en vue d’une réhabilitation
2011
Lieu
Strasbourg, Bas-Rhin (67)
Type
Étude de faisabilité patrimoniale
Maîtrise d’ouvrage
Agence Publique pour l’Immobilier de la Justice (APIJ)
Équipe
Ligaré, mandataire
Philippe Grandvoinnet, architecte
Passé l’engouement suscité par la réalisation de palais de justice neufs comme à Nantes (Nouvel, 2000) ou à Bordeaux (Rogers, 1998), les magistrats expriment le souhait de réhabiliter les édifices historiques des centres-ville au pouvoir symbolique fort, putôt que d’en bâtir de nouveaux en périphérie. Dans cette perspective, le Ministère de la Justice charge Ligaré de mener l’étude préalable visant la réhabilitation du Palais de Justice de Strasbourg.
Construit entre 1893 et 1898 par l’administration allemande, le palais s’inscrit dans le plan d’extension de la ville conçu à la fin du XIXᵉ siècle, au cœur de la Neustadt, aujourd’hui candidate au patrimoine mondial de l’UNESCO. Édifice public majeur de cette extension urbaine, le bâtiment occupe une position stratégique à l’articulation entre la ville médiévale et la ville nouvelle. Son architecture, issue d’une synthèse de références françaises et germaniques, se caractérise par une composition monumentale, des espaces de représentation de grande qualité et une organisation fonctionnelle lisible. Le palais est inscrit à l’inventaire supplémentaire des monuments historiques depuis 1992, pour ses façades, toitures et principaux espaces intérieurs.
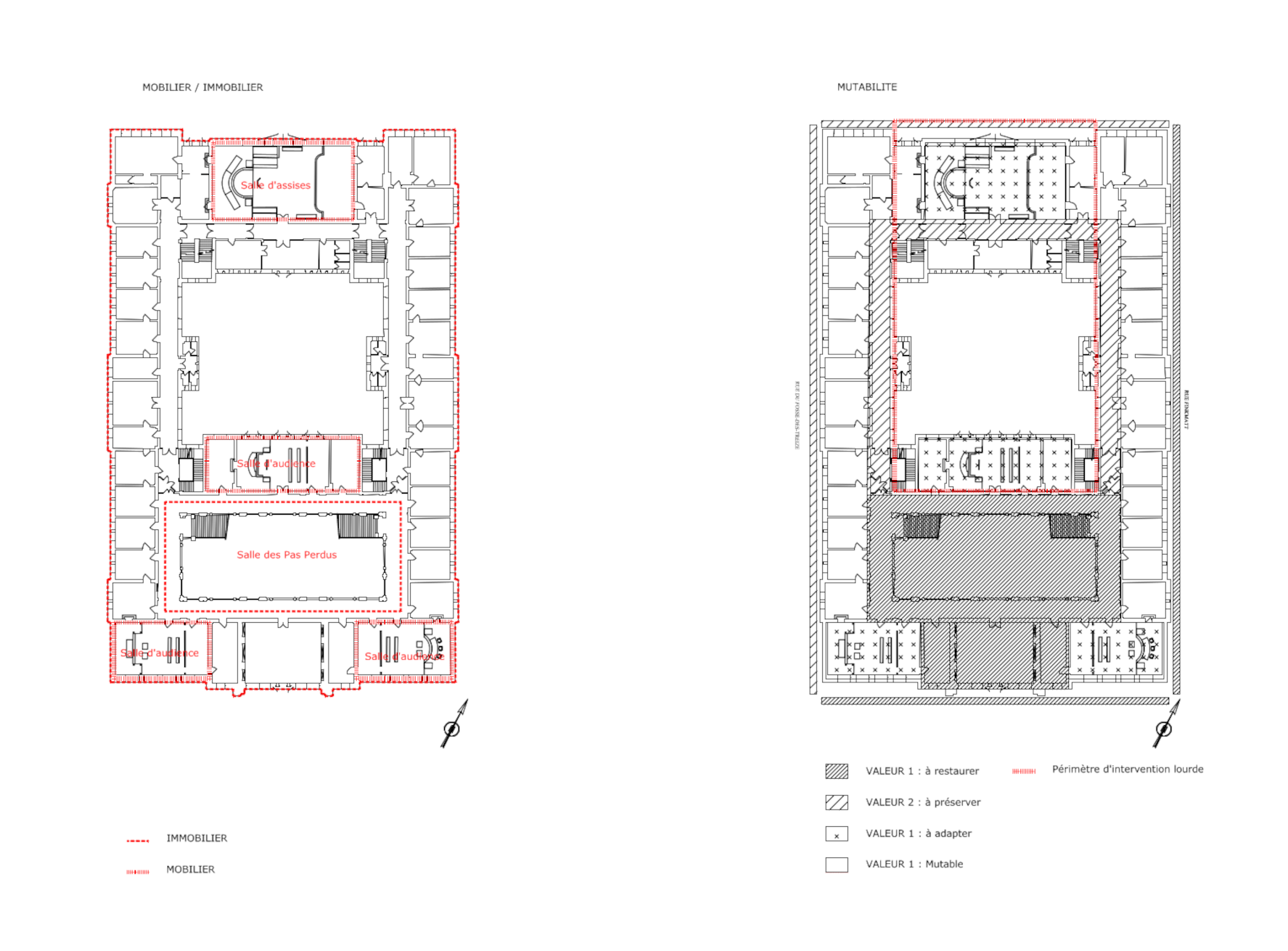
La mission confiée à Ligaré a consisté à réaliser une étude architecturale, patrimoniale et urbaine, comprenant un diagnostic approfondi du bâti, une analyse historique et urbaine de l’édifice et de ses abords, ainsi que l’élaboration d’un cahier de prescriptions destiné à encadrer les interventions futures. Menée en concertation avec la DRAC d’Alsace et le Service territorial de l’architecture et du patrimoine du Bas-Rhin, l’étude visait à identifier les parties du bâtiment susceptibles d’évoluer afin d’adapter le palais aux exigences contemporaines de la justice (sécurité, accessibilité, fonctionnalité) tout en respectant les qualités patrimoniales, spatiales et urbaines de l’édifice.
Ce travail s’inscrivait en amont du projet de restructuration réalisé en 2017 par l’agence Garcés de Seta Bonet architectes, en définissant un cadre de référence partagé pour concilier maintien de la fonction judiciaire en centre-ville et valorisation d’un monument emblématique de la Neustadt strasbourgeoise.
103 rue Raymond Losserand, Paris 14e
SARL inscrite à l’Ordre des architectes – SIRET 479 222 838 00035
@ Ligaré architecture & patrimoine – 2025